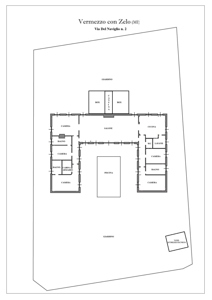
<strong>Villa con giardino in vendita a Vermezzo Con Zelo</strong> <p>Nello splendido contesto residenziale di Vermezzo Con Zelo, a soli 15 Km da Milano, proponiamo un villino indipendente unifamiliare in perfetto stato di manutenzione, con piscina privata e immerso nel verde, di mq. 350 su un unico piano, oltre al grande giardino di circa mq. 900. La villa si sviluppa intorno alla piscina ed è composta da un grande salone triplo con camino, un'ampia cucina abitabile finemente arredata e con vano lavanderia, 5 camere da letto, di cui una è attualmente utilizzata come guardaroba, 4 bagni e un'ampia cabina armadio. Lungo tutto il perimetro interno si snoda il portico che idealmente abbraccia la piscina di dimensioni generose. Tutti i locali affacciano sul grande giardino, al quale si accede tramite il cancello principale, si sviluppa lungo tutto il perimetro della villa, dando cos' modo di usufruire di tutta l'area scoperta, molto riservata, dove è stato creato anche un corner dedicato a una griglia esterna per il barbeque. Completano la proprietà un vano per il ricovero dei macchinari del giardino, due box singoli e una cantina. E' stato recentemente realizzato un efficiente impianto fotovoltaico con batterie di accumulo da 23 Kw. Si tratta di una splendida e tranquilla proprietà che, grazie alla sua conformazione, risulta estremamente versatile e rappresentanza. A soli 900 metri dal centro di Vermezzo e a poco più di 5 minuti dalla stazione di Albairate</p>

_91zv86m1im.png)
_empzeflso9.png)
_0dr40tflmk.png)
_i727s11cfg.png)
_zgrmby0ey1.png)
_cky7zp8nn6.png)
_w8y1j194hf.png)
_9p60x5hr6y.png)
